Apartamentul cu suflet
- Locație: Sector 4, București
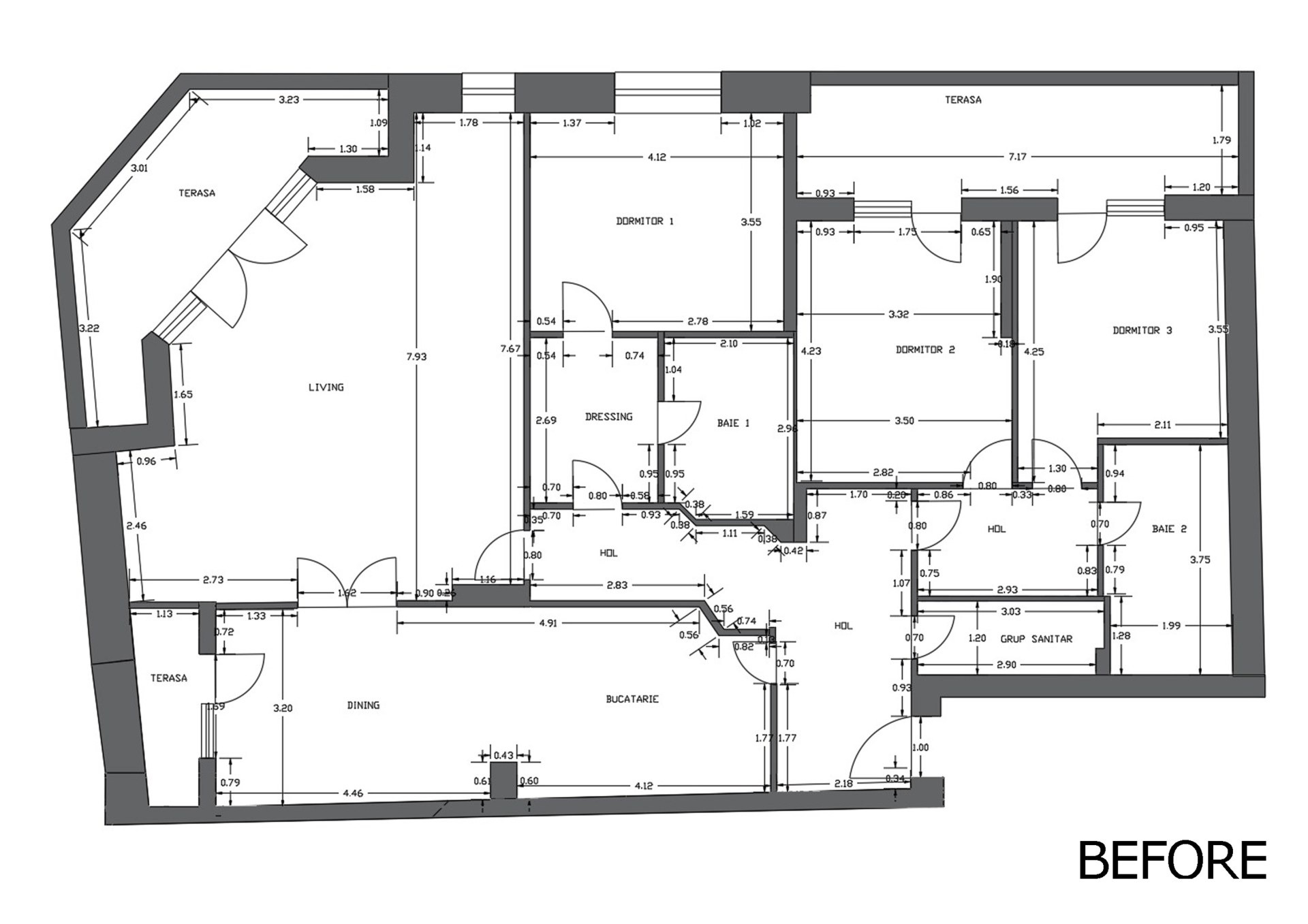
- Suprafață construită: 181.58 mp
- Suprafață utilă: 156.87 mp
- An: 2025
- Beneficiar: Pop Adrian și Pop Iulia
- Design interior: Arh. Izabela Tudorache
- Constructor: RFCC DEVELOPMENT SRL


Proiectul propune reconfigurarea completă a unui apartament obișnuit, pentru a răspunde nevoilor unui cuplu tânăr și ale fiicei lor adolescente. Beneficiarii și-au dorit un spațiu cald, colorat, coerent și aerisit – o locuință care să le reflecte energia, dar care să ofere în același timp tihnă și echilibru.
Apartamentul a fost recompartimentat integral, renunțându-se la holurile înguste și la separările rigide. Noul plan favorizează fluxul natural, zonele comune ample și o circulație firească. Bucătăria, zona de dining și livingul sunt acum reunite într-un spațiu deschis, dar articulat prin diferențe subtile de textură, lumină și mobilier.
Designul interior este construit pe un echilibru între tonuri calde, accente jucăușe de culoare și elemente tactile. Mobilierul realizat la comandă, riflajele din lemn, ceramica texturată, textilele moi și corpurile de iluminat atent alese creează o atmosferă personală și coerentă. Fiecare zonă are o identitate clară, dar se înscrie într-un limbaj unitar.
Holurile și spațiile de tranziție au fost tratate cu aceeași atenție ca zonele principale – integrate cu soluții de depozitare, finisaje expresive și accente grafice discrete. Bucătăria combină nuanțe de teracotă și alb mat, cu texturi naturale și detalii metalice, devenind un spațiu cald și funcțional, deschis dar bine definit.
Dormitoarele reflectă personalitățile celor care le locuiesc: spații intime, cu detalii pline de sens, finisaje liniștite și jocuri de lumină care susțin confortul cotidian. Băile, cu faianță pastelată, obiecte sanitare simple și accente verticale, completează ansamblul printr-un limbaj calm și coerent.
Proiectul nu își propune spectaculozitate, ci echilibru. Este o locuință care răspunde cu sinceritate unui stil de viață real: cu bucurii simple, ritmuri de familie și nevoia de armonie. Un apartament care adună căldura lucrurilor bine așezate, și care oferă, în fiecare zi, un spațiu pentru tihnă, culoare și liniște.






















