Grădina în cadru
- Locație: Snagov, Ilfov
- Suprafață: 294.10 mp
- An: 2024
- Beneficiar: Grădina noastră și Balkan Partner SRL
- Arhitectură: Arh. Izabela Tudorache
- Design interior: Arh. Izabela Tudorache
- Rezistență: Ing. Andrei Badiu
- Instalații: Ing. Mihai Terzi

Proiectul propune un ansamblu funcțional și coerent care combină un showroom de plante cu spații de birouri și cazare, într-un context semi-rural, calm și atent cultivat. Arhitectura reflectă un echilibru între spiritul contemporan al designului industrial și căldura subtilă a materialelor naturale, oferind un mediu prietenos și versatil.
Volumul principal găzduiește zona de primire și spațiile de birouri, într-o construcție cu o siluetă clară și finisaje în tonuri naturale, care favorizează continuitatea vizuală între exterior și interior. Spațiul generos și înalt este străbătut de lumină naturală, iar vegetația amplasată strategic aduce o notă de prospețime și echilibru. Funcțiunile sunt organizate logic: la intrare se află un lounge informal pentru întâlniri spontane și o zonă de lucru cu birouri repartizate într-un cadru aerisit, ce păstrează intimitatea fără a fragmenta spațiul.
Volumul dedicat întâlnirilor funcționează ca un „cuib” – un spațiu în care vegetația exterioară pătrunde vizual prin ferestrele ample, devenind decor activ al discuțiilor și deciziilor. Separat, dar integrat armonios, se află zona destinată depozitării, tratată unitar din punct de vedere estetic cu restul ansamblului.
Fațada principală este înconjurată de o grădină-showroom, gândită ca un peisaj naturalist controlat. Aceasta îndeplinește atât un rol funcțional – de prezentare a speciilor de plante – cât și unul atmosferic, creând o introducere firească în universul proiectului. Compoziția vegetală este organizată după criterii de sezonalitate, culoare și textură, oferind vizitatorilor o experiență imersivă și practică.
Zona de cazare destinată ownerilor este integrată discret în ansamblu, oferind intimitate și confort într-o relație firească cu restul funcțiunilor. Astfel, locuirea devine parte dintr-un ecosistem profesional și natural bine articulat.
Întregul ansamblu este un manifest pentru o nouă tipologie de spațiu de lucru: unul în care vegetația nu este decor, ci parte activă a funcționării cotidiene. Un loc care respiră, crește și lucrează împreună cu oamenii care îl folosesc.



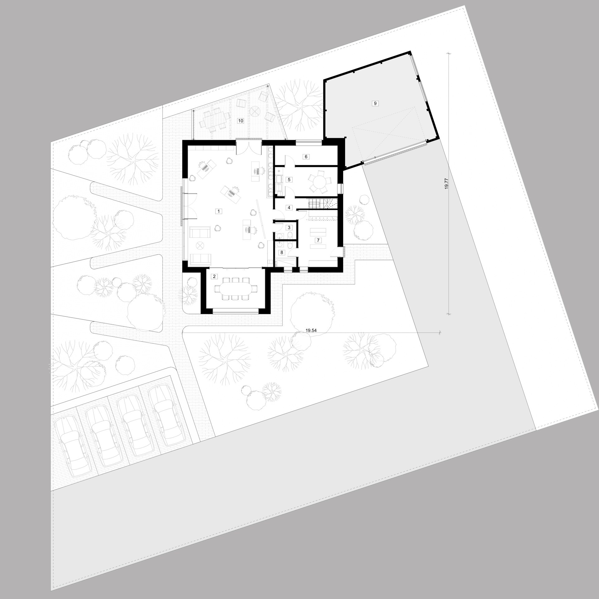
Legendă și suprafețe:
Parter
- Sală de așteptare și birouri – 60.12 mp
- Sală de conferințe – 13.66 mp
- Grup sanitar – 2.21 mp
- Hol și casa scării – 5.32 mp
- Bucătărie – 10.74 mp
- Cameră tehnică – 7.26 mp
- Vestiar – 13.08 mp
- Baie – 3.28 mp
- Depozitare – 49.65 mp
- Terasă loisir – 22.54 mp
Mansardă
11. Hol – 1.83 mp
12. Baie – 4.49 mp
13. Dormitor – 13.96 mp
14. Depozitare – 13.03 mp
Suprafață utilă totală = 241.75 mp
Suprafață construită totală = 294.10 mp









